Map Region : lat:28.05-31.05  lon:56.23-59.23

  North  
West   East
  South  
Show Cities
Show Foreign Cities
Show Fault Mechanism
Show Province Boundaries
Show Stations
Map Title

Get Ascii Data in Format : List Seisan GSE2.0
Prel. Rep.DateTime(UTC)Time(Local)Lat.Lon.DepthMag.RegionWaveform
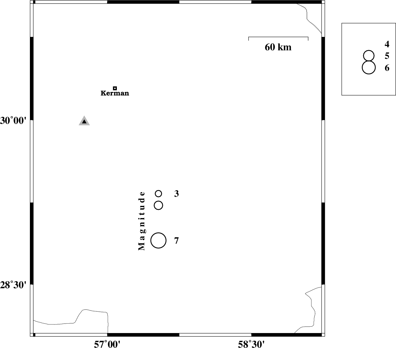
2008/03/27 19:21:55.4 23:51:55.4 29.5557.7314 ML:3.2 78 km North-West of Bam, Kerman Province
2008/03/27 19:17:37.9 23:47:37.9 29.5557.7214 ML:2.8 79 km North-West of Bam, Kerman Province
2008/03/23 06:51:53.2 11:21:53.2 28.1256.4615 ML:3.5 58 km South-East of Hajiabad, Hormozgan Province
2008/03/22 00:01:01.5 04:31:01.5 28.4757.0217 ML:4.1 73 km South-West of Jiroft, Kerman Province
2008/02/27 01:58:24.6 05:28:24.6 30.7756.9214 ML:3.7 33 km East of Zarand, Kerman Province